BIDDING OPENS in...

Description

  • Status: Available
  • Type: Land
  • Ownership: Freehold
  • Occupation: Vacant

SUBSTANTIAL sized plot located in the village of Coalburn by Lesmhagow in South Lanarkshire.

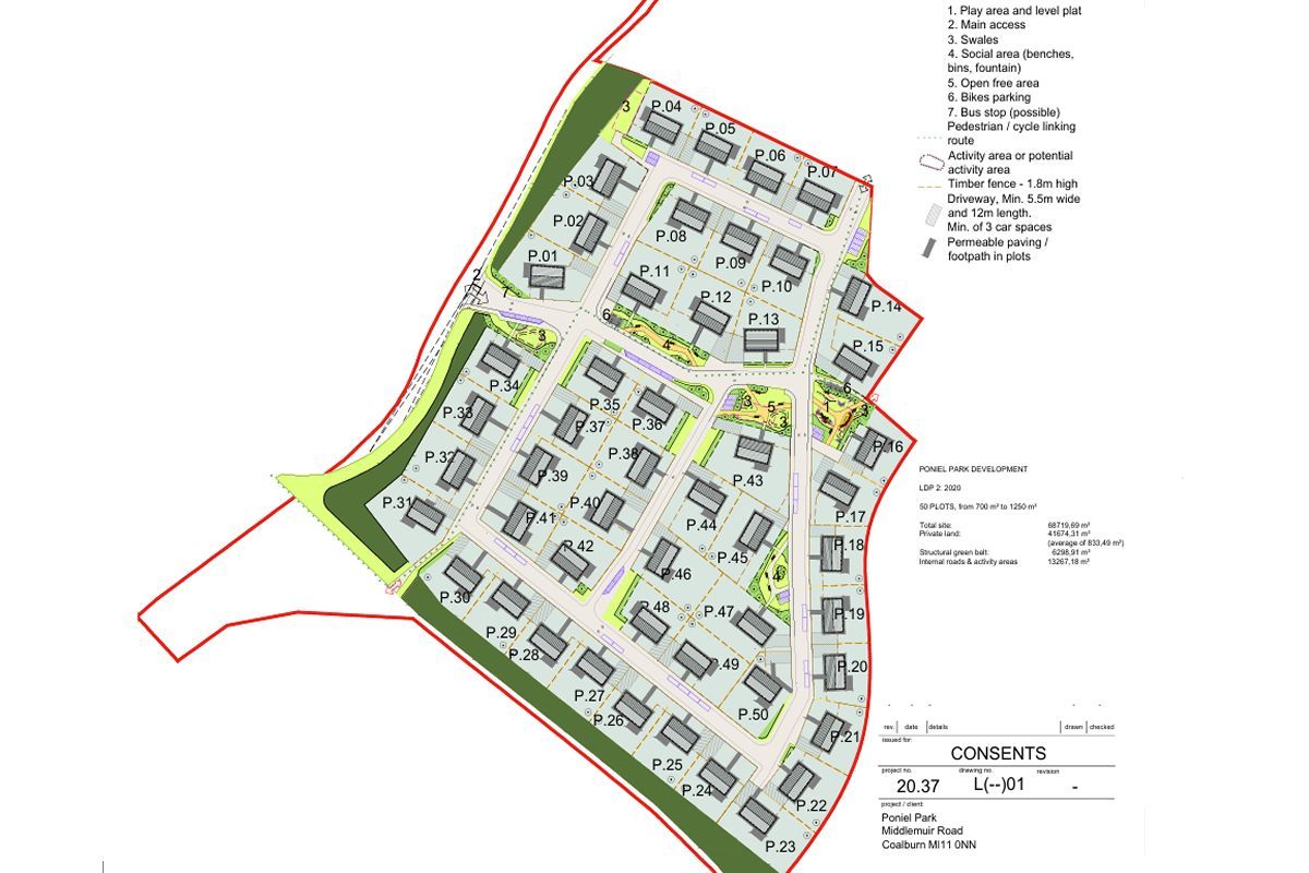
RARE OPPORTUNITY TO ACQUIRE an irregular shaped plot on Middlemuir Road. May be suitable for multiple uses (subject to consents). Previous outline PLANNING for large residential development.

Dalquhandy open-cast coal mine site Located near Coalburn in South Lanarkshire, Scotland, was one of Europe's largest open-cast sites when operational from 1988 to the late 1990s.

SUPER INVESTMENT OPPORTUNITY*** House prices around ML11 0RS have an overall average of £141,992 over the last year.

Coalburn is an attractive village four miles south of Lesmahagow. Excellent commuter location with growing population close to M74 motorway network.

SUBSTANTIAL sized plot located in the village of Coalburn by Lesmhagow in South Lanarkshire. RARE OPPORTUNITY TO ACQUIRE an irregular shaped plot on Middlemuir Road. May be suitable for multiple uses (subject to consents). Dalquhandy open-cast coal mine site Located near Coalburn in South Lanarkshire, Scotland, was one of Europe's largest open-cast sites when operational from 1988 to the late 1990s. House prices around ML11 0RS have an overall average of £141,992 over the last year. Coalburn is an attractive village four miles south of Lesmahagow. Excellent commuter location with growing population close to M74 motorway network.

Coalburn is small village four miles south of Lesmahagow. The village, as the name suggests, was famous for coalmining. The mining has however stopped and the areas have been remediated back to open countryside. The village has a strong community presence and it has its own leisure centre with a swimming pool and a primary school. Junction 12 on the M74 is three miles away.

Full Address:  Site at Middlemuir Road, Coalburn, South Lanarkshire, ML11 0NN

Show More

Map & Location

Map   Street View   Satellite

Document Downloads

Legal Docs (Available)

* If no Special Conditions of Sale are present in the legal docs download bidders are advised to request a copy by email prior to bidding.

Tours & Media

View Video Tour


Pricing Information & Bidding

Opening Bid: £125,000

What is an Opening Bid? This property is entered into an online auction where the bidding will start or open at the above price. Unless specified all properties are subject to a Reserve (minimum acceptable price).

How to Bid... To take part in the online auction you must firstly create a bidding account. Once you have a bidding account you can then login and place bids during the auction. Please click on the following link to view the latest Online Auction Bidders Guide now.

View Live Online Auction

Offer Now... You may submit an offer now on this property for the owner to consider. If they are will are willing to sell you the property now then it is a matter of making the required deposit payment to secure the purchase. Complete our ONLINE OFFER FORM now to put your offer forward to the sellers.

Submit Offer Now

Terms of Sale

  • 10% Deposit (Minimum £3,000)
  • Standard Completion (Unless specified differently in any Special Conditions of Sale)
  • Buyers Fee = 3% of Sale Price (Minimum £3,250 + vat)

STANDARD TERMS OF SALE are 4 week completion with 1 week extension. Sellers can request an earlier or later completion date which will be detailed in any Special Conditions of Sale for this lot. Buyers must satisfy themselves prior to bidding as to the terms on offer.

* If no Special Conditions of Sale are present in the legal docs download bidders are advised to request a copy by email prior to bidding.

Payment Calculator

Please use our PAYMENT CALCULATOR to confirm the necessary reservation deposit for this property if you are successful with an offer now or bid at auction.

Payment Calculator

Auction Details

Date & Time: 07 May 2026, 10am-3pm
Type: Timed Online Auction

View Full Auction Catalogue