BIDDING OPENS in...

Plans

54  Dalrymple Street  Girvan

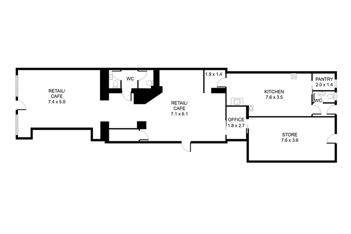
Click to Enlarge Floorplan Image

Description

  • Status: Available
  • Type: Commercial
  • Ownership: Freehold
  • Occupation: Vacant

Ground floor unit, Former Café / Restaurant Premises – Development or Business Opportunity.

A substantial ground floor commercial unit formerly operating as a café/restaurant until very recently, prominently positioned on Dalrymple Street (A77) within the coastal town of Girvan.

The property benefits from a full width shop frontage with recessed entrance facing the main arterial route through the town, providing excellent visibility and passing traffic.

Internally the premises are substantial extending to approximately 160.59 sq m (1,729 sq ft).

Comprise a large café/retail seating areas together with kitchen facilities, storage areas / potential function suite for private dining parties, pantry, customer WC facilities and staff WC facilities

The building forms part of a traditional mid-terraced two storey and attic property of stone construction, with rear extensions constructed in brick and finished with pitched and shallow pitched roofs. Flooring at ground level is generally concrete with internal walls formed in plasterboard and timber finishes. Services are understood to include three phase electricity, water and drainage, with a historical gas supply previously connected to the property. To the rear of the building lie extensive garden grounds and parking area, 50% of this is cafe use and 50% flat use. This offers potential for storage, outdoor seating or redevelopment (subject to the appropriate consents).

The premises occupy a central position within Girvan, a busy coastal town, a few minute walk to the beach with a population of approximately 7,000, located around 20 miles south of Ayr. Dalrymple Street forms the town’s main commercial thoroughfare with nearby occupiers including Nisa Local, Home Hardware, Greggs and Savers, providing strong surrounding footfall.

Full Address: 54 Dalrymple Street, Girvan, KA26 9BT

Show More

Map & Location

Map   Street View   Satellite

Document Downloads

  Legal Docs (Pending)

* If no Special Conditions of Sale are present in the legal docs download bidders are advised to request a copy by email prior to bidding.

 * Click the above 'Pending' document link to log your request and we will notify you once available.

Pricing Information & Bidding

Opening Bid: £72,000

What is an Opening Bid? This property is entered into an online auction where the bidding will start or open at the above price. Unless specified all properties are subject to a Reserve (minimum acceptable price).

How to Bid... To take part in the online auction you must firstly create a bidding account. Once you have a bidding account you can then login and place bids during the auction. Please click on the following link to view the latest Online Auction Bidders Guide now.

View Live Online Auction

Offer Now... You may submit an offer now on this property for the owner to consider. If they are will are willing to sell you the property now then it is a matter of making the required deposit payment to secure the purchase. Complete our ONLINE OFFER FORM now to put your offer forward to the sellers.

Submit Offer Now

SPECIAL Terms of Sale

  • 10% Deposit (Minimum £3,000)
  • Buyers Fee = 3% of Sale Price (Minimum £3,250 + vat)
  • £2,500

VIEW THE GENERAL TERMS OF SALE which are superseded by any special conditions detailed above.

* If no Special Conditions of Sale are present in the legal docs download bidders are advised to request a copy by email prior to bidding.

Payment Calculator

Please use our PAYMENT CALCULATOR to confirm the necessary reservation deposit for this property if you are successful with an offer now or bid at auction.

Payment Calculator

Auction Details

Date & Time: 12 March 2026, 10am-3pm
Type: Timed Online Auction

View Full Auction Catalogue