BIDDING OPENS in...

Plans

54  Dalrymple Street  Girvan

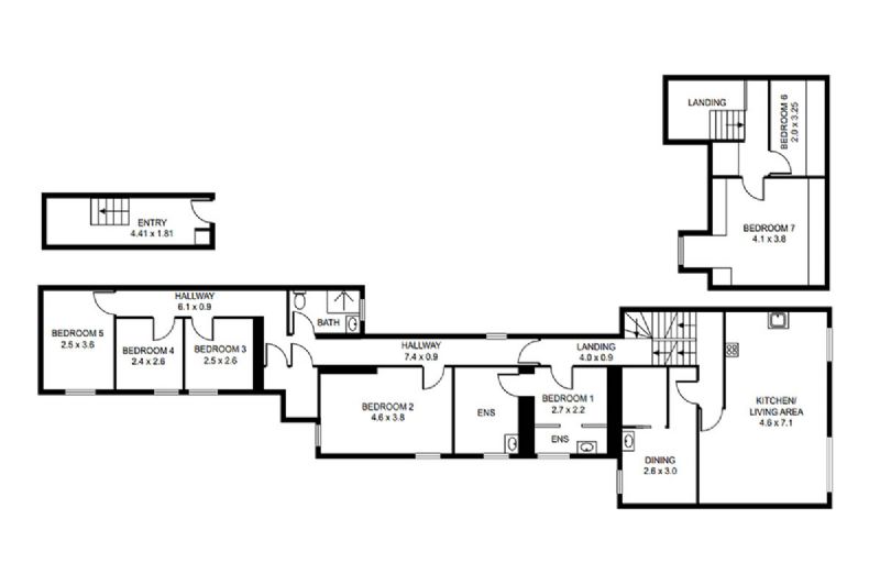
Click to Enlarge Floorplan Image

Description

  • Status: Available
  • Type: Flat
  • Ownership: Freehold
  • Occupation: Vacant
  • Bedrooms: 7
  • Council Tax: Search

A substantial first and attic floor duplex flat located within the popular coastal town of Girvan on the Ayrshire coast.

The property forms part of a traditional mid-terraced stone building and benefits from independent access from the front elevation, offering excellent potential for refurbishment and redevelopment.

Extending to approximately 149.02 sq m (1,604 sq ft), the accommodation is arranged over two levels and provides a generous multi-apartment layout.

including several bedrooms, kitchen/living space and bathroom facilities. The property requires modernisation throughout.

presenting an ideal opportunity for investors or developers to upgrade and reconfigure to create a large residential dwelling or potential HMO/holiday accommodation, subject to the appropriate consent

The building is of traditional stone construction with pitched and slated roof, with internal walls generally formed in plasterboard and timber finishes with suspended timber floors to the upper levels. Services are understood to include electricity, water and drainage. To the rear, the property benefits from extensive garden grounds incorporating a timber garage and parking area, providing additional amenity space rarely available with town centre properties. There is also historic planning approval for a stair connection from the flat to the rear garden, which could significantly enhance access and usability of the outdoor space.

Situated on Dalrymple Street (A77), Girvan’s main thoroughfare, the property lies within a well-established town centre location close to local amenities, shops and transport links. Girvan itself is a seaside town, the property is a few minutes walk to the beach and sits approximately 20 miles south of Ayr on the Clyde coast and benefits from good road connections to the ferry port at Cairnryan.

Full Address: 54 Dalrymple Street, Girvan, KA26 9BT

Show More

Map & Location

Map   Street View   Satellite

Document Downloads

Home Report (Pending)   Legal Docs (Pending)

* If no Special Conditions of Sale are present in the legal docs download bidders are advised to request a copy by email prior to bidding.

 * Click the above 'Pending' document link to log your request and we will notify you once available.

Pricing Information & Bidding

Opening Bid: £85,000

What is an Opening Bid? This property is entered into an online auction where the bidding will start or open at the above price. Unless specified all properties are subject to a Reserve (minimum acceptable price).

How to Bid... To take part in the online auction you must firstly create a bidding account. Once you have a bidding account you can then login and place bids during the auction. Please click on the following link to view the latest Online Auction Bidders Guide now.

View Live Online Auction

Offer Now... You may submit an offer now on this property for the owner to consider. If they are will are willing to sell you the property now then it is a matter of making the required deposit payment to secure the purchase. Complete our ONLINE OFFER FORM now to put your offer forward to the sellers.

Submit Offer Now

SPECIAL Terms of Sale

  • 10% Deposit (Minimum £3,000)
  • Buyers Fee = 3% of Sale Price (Minimum £3,250 + vat)
  • £2,500

VIEW THE GENERAL TERMS OF SALE which are superseded by any special conditions detailed above.

* If no Special Conditions of Sale are present in the legal docs download bidders are advised to request a copy by email prior to bidding.

Payment Calculator

Please use our PAYMENT CALCULATOR to confirm the necessary reservation deposit for this property if you are successful with an offer now or bid at auction.

Payment Calculator

Auction Details

Date & Time: 12 March 2026, 10am-3pm
Type: Timed Online Auction

View Full Auction Catalogue