BIDDING OPENS in...

Plans

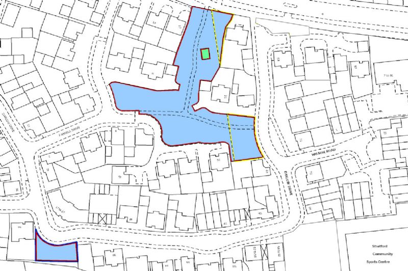
  Plots at Midsummer Meadows  Stratford Upon Avon

Click to Enlarge Floorplan Image

Description

  • Status: Available
  • Type: Land
  • Ownership: Freehold
  • Occupation: Vacant

2 substantial areas of land in popular residential locale. Total site areas approx. 0.7 acres.

Land comprises mostly amenity land and trees within an irregular shaped areas.

Popular and sought after location and excellent sized plots of land.

Close to local amenities, transport links.

Seldom Available Auction Property in prime locale.

The property is ideally situated for access to Stratford-upon-Avon's wealth of amenities, from its excellent choice of primary and secondary schools to its riverside walks, shops, pubs, restaurants and world-renowned cultural attractions. Everything the town offers is within comfortable walking distance, making this a highly practical and desirable location for modern living.

Full Address:  Plots at Midsummer Meadows, Stratford Upon Avon, CV37 9DX

Show More

Map & Location

Map   Street View   Satellite

Document Downloads

Legal Docs (Available)

* If no Special Conditions of Sale are present in the legal docs download bidders are advised to request a copy by email prior to bidding.

Pricing Information & Bidding

Opening Bid: £7,000

What is an Opening Bid? This property is entered into an online auction where the bidding will start or open at the above price. Unless specified all properties are subject to a Reserve (minimum acceptable price).

How to Bid... To take part in the online auction you must firstly create a bidding account. Once you have a bidding account you can then login and place bids during the auction. Please click on the following link to view the latest Online Auction Bidders Guide now.

View Live Online Auction

Offer Now... You may submit an offer now on this property for the owner to consider. If they are will are willing to sell you the property now then it is a matter of making the required deposit payment to secure the purchase. Complete our ONLINE OFFER FORM now to put your offer forward to the sellers.

Submit Offer Now

Terms of Sale

  • 10% Deposit (Minimum £3,000)
  • Standard Completion (Unless specified differently in any Special Conditions of Sale)
  • Buyers Fee = 3% of Sale Price (Minimum £3,250 + vat)

STANDARD TERMS OF SALE are 4 week completion with 1 week extension. Sellers can request an earlier or later completion date which will be detailed in any Special Conditions of Sale for this lot. Buyers must satisfy themselves prior to bidding as to the terms on offer.

* If no Special Conditions of Sale are present in the legal docs download bidders are advised to request a copy by email prior to bidding.

Payment Calculator

Please use our PAYMENT CALCULATOR to confirm the necessary reservation deposit for this property if you are successful with an offer now or bid at auction.

Payment Calculator

Auction Details

Date & Time: 12 March 2026, 10am-3pm
Type: Timed Online Auction

View Full Auction Catalogue