BIDDING OPENS in...

Description

  • Status: Available
  • Type: Land
  • Ownership: Freehold
  • Occupation: Vacant

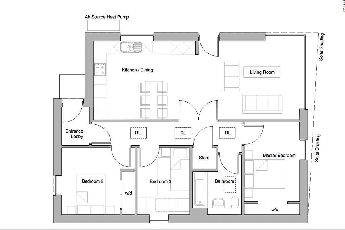
Planning lodged for a lovely contemporary house plot on Gower Street, complete property consists of modern single storey 3 bedroom detached home with private parking & garden Planning ref TWC/2026/01

Complete property consists of Lounge, Kitchen Dining, Family Bathroom, Master Bedroom & two further bedrooms. Further benefits from driveway & two car parking spaces and garden surround. Easy access

Detached house prices around TF2 9BL have an overall average of £282,038 (Rightmove) and this property if completed to a high standard in line with the architects vision could fetch up-to £350,000.

The area benefits from an abundance of green open spaces, with Granville Country Park just a short distance away. There are local amenities within easy reach, including supermarkets & retail outlets.

The property is situated in a well-established part of Telford, known for its balance of residential tranquillity & accessibility. Families and commuters alike appreciate the excellent transport links

Planning lodged for a lovely contemporary house plot on Gower Street, complete property consists of modern single storey 3 bedroom detached home with private parking & garden Planning ref TWC/2026/01 Complet property consists of Lounge, Kitchen Dining, Family Bathroom, Master Bedroom & two further bedrooms. Further benefits from driveway & two car parking spaces and garden surround. Easy access. Please see architects impressions attached. Planning registered with an outline application for the erection of one dwelling and associated access. Planning registered with Telford and Wrenkin Council Planning Department with planning reference TWC/2026/0113. Detached house prices around TF2 9BL have an overall average of £282,038 (Rightmove) and this property if completed to a high standard in line with the architects vision could fetch up-to £350,000. The area benefits from an abundance of green open spaces, with Granville Country Park just a short distance away. There are local amenities within easy reach, including supermarkets & retail outlets. The BUYER agrees to pay on COMPLETION to the SELLER’s solicitors a contribution towards the SELLERs legal and administrative fees of £750 plus VAT which sum is to be paid to the SELLER’s solicitors with the PRICE.

The property is situated in a well-established part of Telford, known for its balance of residential tranquillity and accessibility. Families and commuters alike appreciate the excellent transport links, including nearby access to the M54 motorway and a range of bus routes connecting easily with Telford town centre and further afield. Telford Central rail station offers regular services to Shrewsbury, Wolverhampton and Birmingham, making it ideal for those travelling for work or leisure. There is a variety of local amenities within easy reach, including supermarkets, retail outlets, and eateries, as well as everyday conveniences such as pharmacies, fitness centres and takeaways. The area benefits from an abundance of green open spaces, with Granville Country Park just a short distance away, providing scenic walking trails and an escape into nature. For families, there is a good selection of local schools catering for all age ranges, and a choice of nurseries and childcare options in the vicinity.

Full Address: Land  adjacent Sunnyside, Gower Street, St Georges, Telford, Shropshire, TF2 9BL

Show More

Map & Location

Map   Street View   Satellite

Document Downloads

  Legal Docs (Pending)

* If no Special Conditions of Sale are present in the legal docs download bidders are advised to request a copy by email prior to bidding.

 * Click the above 'Pending' document link to log your request and we will notify you once available.

Pricing Information & Bidding

Opening Bid: £16,000

What is an Opening Bid? This property is entered into an online auction where the bidding will start or open at the above price. Unless specified all properties are subject to a Reserve (minimum acceptable price).

How to Bid... To take part in the online auction you must firstly create a bidding account. Once you have a bidding account you can then login and place bids during the auction. Please click on the following link to view the latest Online Auction Bidders Guide now.

View Live Online Auction

Offer Now... You may submit an offer now on this property for the owner to consider. If they are will are willing to sell you the property now then it is a matter of making the required deposit payment to secure the purchase. Complete our ONLINE OFFER FORM now to put your offer forward to the sellers.

Submit Offer Now

Terms of Sale

  • 10% Deposit (Minimum £3,000)
  • Standard Completion (Unless specified differently in any Special Conditions of Sale)
  • Buyers Fee = 3% of Sale Price (Minimum £3,250 + vat)

STANDARD TERMS OF SALE are 4 week completion with 1 week extension. Sellers can request an earlier or later completion date which will be detailed in any Special Conditions of Sale for this lot. Buyers must satisfy themselves prior to bidding as to the terms on offer.

* If no Special Conditions of Sale are present in the legal docs download bidders are advised to request a copy by email prior to bidding.

Payment Calculator

Please use our PAYMENT CALCULATOR to confirm the necessary reservation deposit for this property if you are successful with an offer now or bid at auction.

Payment Calculator

Auction Details

Date & Time: 12 March 2026, 10am-3pm
Type: Timed Online Auction

View Full Auction Catalogue