BIDDING OPENS in...

Description

  • Status: Available
  • Type: Commercial
  • Ownership: Freehold
  • Occupation: Vacant

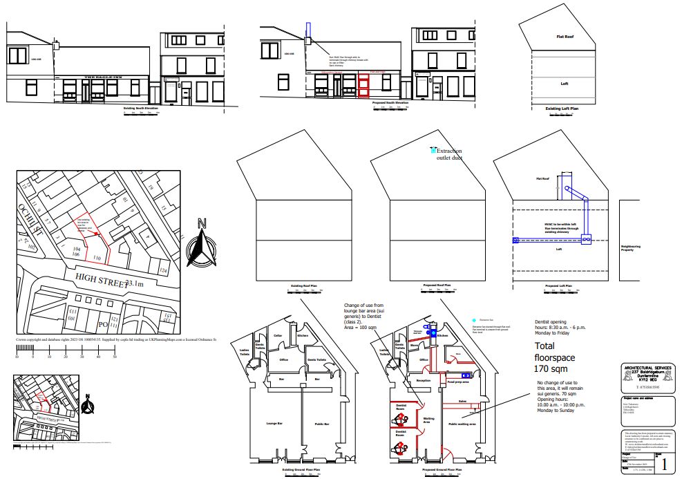
PRIME INVESTMENT***Vacant Ground floor unit in Excellent location. 270sqm (2,906sq ft) Planning For Take Away Granted with Consent For Sub-Division. Qualifies for rates exemption. NAV/RV: £11,600

The property has been extensively refurbished & fitted out to a high standard with traditional timber features highly polished and refurbished throughout. Floors have been overlaid in laminated timber

Compromises: kitchen area with full extraction to the rear, cellar and extensive beer garden accessible from the rear. lounge and public bar benefit from male & female w.c and staff facilities.

Planning granted on 26/09/24 change of use and sub-division to form 2 units comprising Class 2/1 and a take away. Further information can be obtained from the planning portal ref: 24/00162/FULL

Tillicoultry is a Hillfoots village at the southern edge of the Ochil Hills, part of a chain of communities (including Alva and Dollar) beneath the hills. The High Street runs through the centre.

PRIME INVESTMENT***Vacant Ground floor unit in Excellent location. 270sqm (2,906sq ft) Planning For Take Away Granted with Consent For Sub-Division. The property qualifies for rates exemption. The property has been extensively refurbished & fitted out to a high standard with traditional timber features highly polished and refurbished throughout. Floors have been overlaid in laminated timber. Compromises: kitchen area with full extraction to the rear, cellar and extensive beer garden accessible from the rear. lounge and public bar benefit from male & female w.c and staff facilities. Planning granted on 26/09/24 change of use and sub-division to form 2 units comprising Class 2/1 and a take away. Further information can be obtained from the planning portal ref: 24/00162/FULL Tillicoultry is a Hillfoots village at the southern edge of the Ochil Hills, part of a chain of communities (including Alva and Dollar) beneath the hills. The High Street runs through the centre.

The property is located on the north of High Street between its junctions with Ochill Street and Hamilton Street within Tillicoultry town centre. Tillicoultry is an established town within the Hillfoots area of Clackmannanshire, lying astride the A91 road route approximately 10miles east of Stirling and 5 miles north east of Alloa. The town holds a variety of local authority and private housing stock together with plentiful retail and associated facilities with more extensive provisions afforded within nearby Alloa, which forms a principal centre for the surrounding district. Tillicoultry is also home to the Sterling Mills furniture complex and designer outlet, both of which attract significant numbers of visitors to the town from a wide, national catchment area.

Full Address: 110 High Street, Hot Food Investment, Tillicoultry, FK13 6DS

Show More

Map & Location

Map   Street View   Satellite

Document Downloads

Legal Docs (Available)

* If no Special Conditions of Sale are present in the legal docs download bidders are advised to request a copy by email prior to bidding.

Pricing Information & Bidding

Opening Bid: £72,000

What is an Opening Bid? This property is entered into an online auction where the bidding will start or open at the above price. Unless specified all properties are subject to a Reserve (minimum acceptable price).

How to Bid... To take part in the online auction you must firstly create a bidding account. Once you have a bidding account you can then login and place bids during the auction. Please click on the following link to view the latest Online Auction Bidders Guide now.

View Live Online Auction

Offer Now... You may submit an offer now on this property for the owner to consider. If they are will are willing to sell you the property now then it is a matter of making the required deposit payment to secure the purchase. Complete our ONLINE OFFER FORM now to put your offer forward to the sellers.

Submit Offer Now

Terms of Sale

  • 10% Deposit (Minimum £3,000)
  • Standard Completion (Unless specified differently in any Special Conditions of Sale)
  • Buyers Fee = 3% of Sale Price (Minimum £3,250 + vat)

STANDARD TERMS OF SALE are 4 week completion with 1 week extension. Sellers can request an earlier or later completion date which will be detailed in any Special Conditions of Sale for this lot. Buyers must satisfy themselves prior to bidding as to the terms on offer.

* If no Special Conditions of Sale are present in the legal docs download bidders are advised to request a copy by email prior to bidding.

Payment Calculator

Please use our PAYMENT CALCULATOR to confirm the necessary reservation deposit for this property if you are successful with an offer now or bid at auction.

Payment Calculator

Auction Details

Date & Time: 15 January 2026, 10am-3pm
Type: Timed Online Auction

View Full Auction Catalogue