BIDDING OPENS in...

Description

  • Status: Available
  • Type: House
  • Ownership: Freehold
  • Occupation: Vacant
  • Bedrooms: 1
  • Council Tax: Search

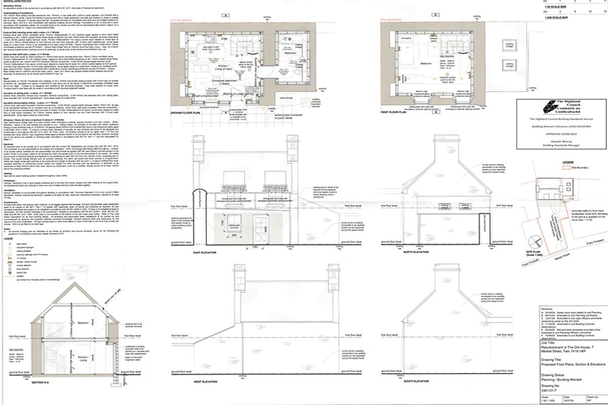
DEVELOPMENT with FULL PLANNING for the Refurbishment of Grade 3 building for residential use. Building Warrant plan approved. 24/03923/FUL Superb central location could be ideal high yield holiday let

A luxury one-double-bedroom holiday let in Tain, costs between £100 and £170 per night, For a week-long stay, you can expect to pay anywhere from £700 to over £1,100 for a high-quality short term let

Completed property consists of ground floor: entrance hallway, living / kitchen / diner, bathroom and upper level: double bedroom. Excellent central location close to all local amenities.

SUPER LOCATION in the heart of the attractive and affluent costal town of Tain on the North Coast 500 Tourist Route. Potential for create unique AirBNB property to generate significant income

Tain, is a historic town & Scotland's oldest Burgh. There is a comprehensive selection of excellent shops and amenities including hotels, leisure facilities, railway station and well-regarded schools

DEVELOPMENT with FULL PLANNING for the Refurbishment of Grade 3 building for residential use. Building Warrant plan approved. 24/03923/FUL Superb central location could be ideal high yield holiday let A luxury one-double-bedroom holiday let in Tain, generally costs between £100 and £170 per night, For a week-long stay, you can expect to pay anywhere from £700 to over £1,100 for a high-quality rental. Completed property consists of ground floor: entrance hallway, living / kitchen / diner, bathroom and upper level: double bedroom. Excellent central location close to all local amenities. EXCELLENT INVESTMENT OPPORTUNITY. Rare opportunity to purchase a historic piece of the Scottish Highlands. This property is believed to be the oldest house in the Easter Ross town of Tain.A burgh survey has identified the house as a surviving early building from around the 16th or 17th century. An exact date of build is not known but records date the property as up to 500 years old. The majority of properties sold around IV19 1AR during the last year were detached properties, selling for an average of £233,147 (data from Rightmove) SUPER LOCATION in the heart of the attractive and affluent costal town of Tain on the North Coast 500 Tourist Route. Potential for create unique AirBNB property to generate significant income

Tain, is a historic town and Scotland's oldest Burgh. There is a comprehensive selection of excellent shops and amenities including hotels, leisure facilities, railway station and well-regarded secondary school. Tain is a small thriving town which sits 34 miles north of Inverness. The Dornoch Firth Bridge enables easy access to the towns in Sutherland and the A9 south to Inverness. The subject property sits on Market Street, close to the junction with Queen Street. IDEAL OPPORTUNITY TO BUY A PRIME PROPERTY. Tain is a Royal Burgh and post town in the committee area of Ross and Cromarty, in the Highlands. The town has several attractions such as Tain Tolbooth and St Duthus Collegiate Church and also boasts a local history museum, Tain Through Time, and the Glenmorangie Distillery. The High Street in Tain is steps away, where the professional, medical and banking services can be found. The town has one major bank, post office, a medical practice, Lidl, Co-op, ASDA, Tesco, a variety of local shops and hotels, two primary schools and Tain Royal Academy being the secondary school. A number of recreational pursuits can be enjoyed in the area such as golf, bowls and tennis. The Highland capital, Inverness is 34 miles to the south where all major transport links can be found. A commuter train goes from Tain to Inverness daily.

Full Address:  DEVELOPMENT OPPORTUNITY 7, The Old House, Market Street, Tain, IV19 1AR

Show More

Map & Location

Map   Street View   Satellite

Document Downloads

Legal Docs (Available)

* If no Special Conditions of Sale are present in the legal docs download bidders are advised to request a copy by email prior to bidding.

Pricing Information & Bidding

Opening Bid: £98,000

What is an Opening Bid? This property is entered into an online auction where the bidding will start or open at the above price. Unless specified all properties are subject to a Reserve (minimum acceptable price).

How to Bid... To take part in the online auction you must firstly create a bidding account. Once you have a bidding account you can then login and place bids during the auction. Please click on the following link to view the latest Online Auction Bidders Guide now.

View Live Online Auction

Offer Now... You may submit an offer now on this property for the owner to consider. If they are will are willing to sell you the property now then it is a matter of making the required deposit payment to secure the purchase. Complete our ONLINE OFFER FORM now to put your offer forward to the sellers.

Submit Offer Now

Terms of Sale

  • 10% Deposit (Minimum £3,000)
  • Standard Completion (Unless specified differently in any Special Conditions of Sale)
  • Buyers Fee = 3% of Sale Price (Minimum £3,250 + vat)

STANDARD TERMS OF SALE are 4 week completion with 1 week extension. Sellers can request an earlier or later completion date which will be detailed in any Special Conditions of Sale for this lot. Buyers must satisfy themselves prior to bidding as to the terms on offer.

* If no Special Conditions of Sale are present in the legal docs download bidders are advised to request a copy by email prior to bidding.

Payment Calculator

Please use our PAYMENT CALCULATOR to confirm the necessary reservation deposit for this property if you are successful with an offer now or bid at auction.

Payment Calculator

Auction Details

Date & Time: 12 February 2026, 10am-3pm
Type: Timed Online Auction

View Full Auction Catalogue