BIDDING OPENS in...

Plans

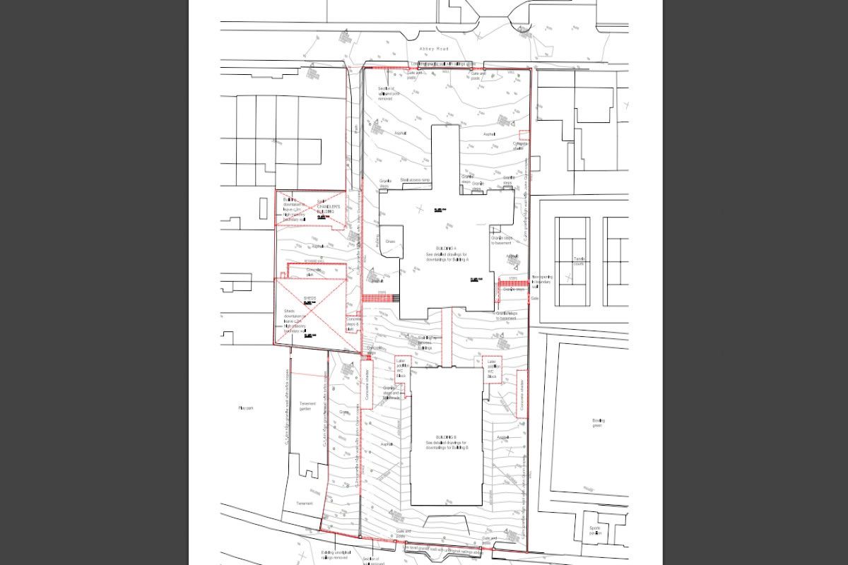
  The Former Victoria Road Primary School, Victoria Road  Aberdeen

Click to Enlarge Floorplan Image

Description

  • Status: Available
  • Type: Commercial
  • Ownership: Freehold
  • Occupation: Vacant

***PRIME DEVELOPMENT OPPORTUNITY*** Former Victoria Road Primary School. Rarely available Super sized plot 0.80 ha. (1.97 acres). Subject to consents may be possible for up to 50 flats on the site.

The site is regular in shape, although it does slope downwards south-to-north. The site has been calculated that it extends to 0.80 ha. (1.97 acres) or thereby.

It is understood that planning permission may be possible for 50 flats (of varying sizes) contained within 4 buildings together with a children’s nursery, community space, car parking and landscapes.

The buildings are primarily constructed of granite walls and have a series of pitched and slated roofs. Due to health and safety concerns, no internal inspection of the property has been undertaken.

The property was found to be in a very poor state of repair being dilapidated, vandalised and fire damaged. Accordingly, the buildings require to be demolished or if retained, extensive refurbishment.

***PRIME DEVELOPMENT OPPORTUNITY*** Former Victoria Road Primary School. Rarely available Super sized plot 0.80 ha. (1.97 acres). EXCELLENT RENTAL LOCATION. It is understood that planning permission may be possible for 50 flats (of varying sizes) contained within 4 buildings together with a children’s nursery,community space, car parking and landscape grounds SUBJECT RELEVANT CONSENTS. The site is regular in shape, although it does slope downwards south-to-north. The site has been calculated that it extends to 0.80 ha. (1.97 acres) or thereby. The buildings are primarily constructed of granite walls and have a series of pitched and slated roofs. Due to health and safety concerns, no internal inspection of the property has been undertaken. The property was found to be in a very poor state of repair being dilapidated, vandalised and fire damaged. Accordingly, the buildings require to be demolished or if retained, extensive refurbishment.

Situated on Victoria Road, the main thoroughfare through Torry, a busy and well-established residential district of Aberdeen. Excellent transport links with multiple bus services stopping nearby and Aberdeen city centre within a 5-minute drive. Walking distance to Aberdeen Harbour, Union Square, train station, and local amenities. The area is home to a mix of local businesses, national brands, and residential housing. Aberdeen is positioned on the northeast coast, where the rivers Dee and Don meet the North Sea. Historically a fishing and shipbuilding hub, now better known for the North Sea oil & gas industry and growing renewables sector.

Full Address:  The Former Victoria Road Primary School, Victoria Road, Aberdeen, AB11 9NT

Show More

Map & Location

Map   Street View   Satellite

Document Downloads

Legal Docs (Available)

* If no Special Conditions of Sale are present in the legal docs download bidders are advised to request a copy by email prior to bidding.

Tours & Media

View Video Tour


Pricing Information & Bidding

Opening Bid: £149,000

What is an Opening Bid? This property is entered into an online auction where the bidding will start or open at the above price. Unless specified all properties are subject to a Reserve (minimum acceptable price).

How to Bid... To take part in the online auction you must firstly create a bidding account. Once you have a bidding account you can then login and place bids during the auction. Please click on the following link to view the latest Online Auction Bidders Guide now.

View Live Online Auction

Offer Now... You may submit an offer now on this property for the owner to consider. If they are will are willing to sell you the property now then it is a matter of making the required deposit payment to secure the purchase. Complete our ONLINE OFFER FORM now to put your offer forward to the sellers.

Submit Offer Now

SPECIAL Terms of Sale

  • 10% Deposit
  • Buyers Fee = 3% of Sale Price (Minimum £3,250 + vat)
  • 4 Weeks Completion or Longer By Agreement
  • Contribution to Sellers Costs £2,750 for on time settlement

VIEW THE GENERAL TERMS OF SALE which are superseded by any special conditions detailed above.

* If no Special Conditions of Sale are present in the legal docs download bidders are advised to request a copy by email prior to bidding.

Payment Calculator

Please use our PAYMENT CALCULATOR to confirm the necessary reservation deposit for this property if you are successful with an offer now or bid at auction.

Payment Calculator

Buy Now Price = £179,000

Please use our BUY NOW form to secure this property now. Once you submit the form we will send you an invoice and payment details so you can make the necessary deposit payment to proceed with the purchase.

BUY NOW for £179,000 - CLICK HERE

Auction Details

Date & Time: 09 October 2025, 10am-3pm
Type: Timed Online Auction

View Full Auction Catalogue