BIDDING OPENS in...

Description

  • Status: Available
  • Type: Commercial
  • Ownership: Freehold
  • Occupation: Vacant

***FREEHOLD former church building with full vacant possession located in incredible rural location***Rare opportunity to create unique family home***

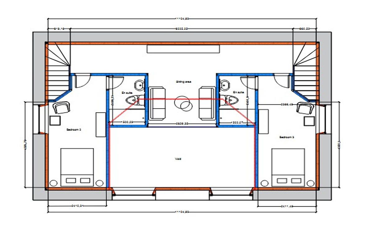
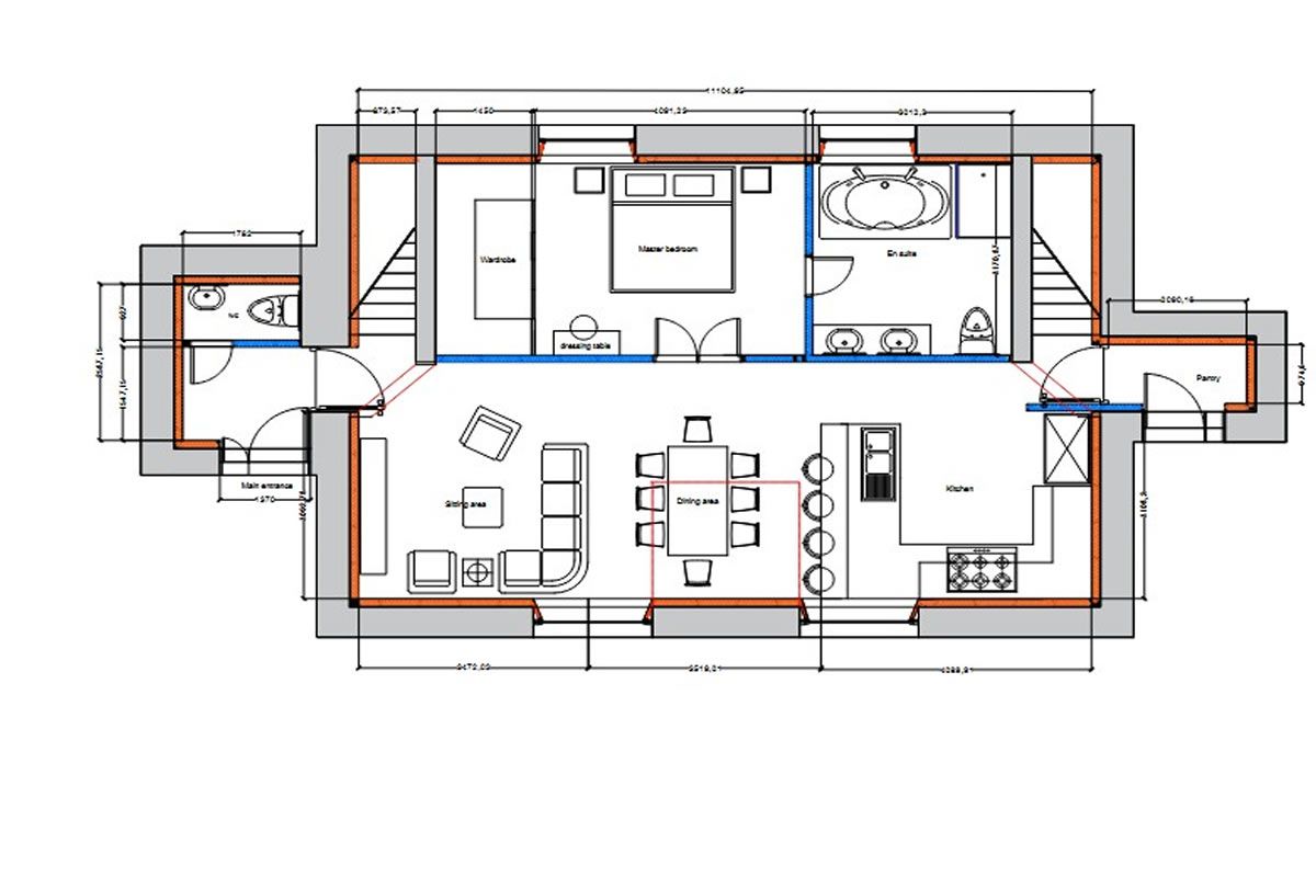
***Fantastic opportunity for conversion to residential dwelling (subject to planning). Indicative plans for house with 3 en suite bedrooms, lounge, kitchen and bathroom***

***Previous local sales evidence: Mid Brae, Kinloch, March 2023, £399,000. Woodacre, Kinloch, May 2023, £203,500. Desirable rural location in sought after area***

***Seller has indicated that the local council have given a favourable response from Perth & Kinross council with regard to residential conversion***

***Incredible opportunity to create a wonderful family home in a beautiful rural location. Church conversions can create the most amazing residential properties with imagination***

***FREEHOLD former church building with full vacant possession located in incredible rural location***Rare opportunity to create unique family home*** ***Fantastic opportunity for conversion to residential dwelling (subject to planning). Indicative plans for house with 3 en suite bedrooms, lounge, kitchen and bathroom*** ***Previous local sales evidence: Mid Brae, Kinloch, March 2023, £399,000. Woodacre, Kinloch, May 2023, £203,500. Desirable rural location in sought after area*** ***Seller has indicated that the local council have given a favourable response from Perth & Kinross council with regard to residential conversion*** ***Incredible opportunity to create a wonderful family home in a beautiful rural location. Church conversions can create the most amazing residential properties with imagination***

Blairgowrie High Street and town centre is a five-minute walk from Ava Estate. The picturesque town is a vibrant market town offering a diverse range of independent shops and supermarkets including Tesco, Lidl, Sainsburys and Co-op. The Well Meadow in the centre of town host a monthly Farmers Market. There are numerous cafes and restaurants serving from family meals to gourmet dining. Keep fit enthusiasts enjoy the Swimming Pool, Leisure Centre and Gym. Blairgowrie has a Cottage Hospital, a Medical Centre, Dentists. Primary School and High School. This is an unspoiled, extremely beautiful part of Scotland with a strong all year-round tourist base. Available is an excellent variety of land and water leisure pursuits including championship golf courses, hill walking, kayaking and skiing. Cultural attractions steeped in history close by include Glamis Castle, Scone Palace and Dunkeld Cathedral. The area has numerous whisky distilleries to experience the liquid gold of Scotland. The city of Perth and Dundee are 16 miles away, St. Andrews 32 miles, Edinburgh 60 miles, Glasgow 75 miles and Aberdeen 72 miles. Edinburgh airport is an hour by car.

Full Address:  Kinloch Church, Kinloch, Blairgowrie, PH10 6SH

Show More

Map & Location

Map   Street View   Satellite

Document Downloads

  Legal Docs (Pending)

* If no Special Conditions of Sale are present in the legal docs download bidders are advised to request a copy by email prior to bidding.

 * Click the above 'Pending' document link to log your request and we will notify you once available.

Pricing Information & Bidding

Opening Bid: £107,000

What is an Opening Bid? This property is entered into an online auction where the bidding will start or open at the above price. Unless specified all properties are subject to a Reserve (minimum acceptable price).

How to Bid... To take part in the online auction you must firstly create a bidding account. Once you have a bidding account you can then login and place bids during the auction. Please click on the following link to view the latest Online Auction Bidders Guide now.

View Live Online Auction

Offer Now... You may submit an offer now on this property for the owner to consider. If they are will are willing to sell you the property now then it is a matter of making the required deposit payment to secure the purchase. Complete our ONLINE OFFER FORM now to put your offer forward to the sellers.

Submit Offer Now

Terms of Sale

  • 10% Deposit (Minimum £3,000)
  • Standard Completion (Unless specified differently in any Special Conditions of Sale)
  • Buyers Fee = 3% of Sale Price (Minimum £3,250 + vat)

STANDARD TERMS OF SALE are 4 week completion with 1 week extension. Sellers can request an earlier or later completion date which will be detailed in any Special Conditions of Sale for this lot. Buyers must satisfy themselves prior to bidding as to the terms on offer.

* If no Special Conditions of Sale are present in the legal docs download bidders are advised to request a copy by email prior to bidding.

Payment Calculator

Please use our PAYMENT CALCULATOR to confirm the necessary reservation deposit for this property if you are successful with an offer now or bid at auction.

Payment Calculator

Auction Details

Date & Time: 26 March 2026, 10am-3pm
Type: Timed Online Auction

View Full Auction Catalogue