BIDDING OPENS in...

Description

  • Status: Available
  • Type: Land
  • Ownership: Freehold
  • Occupation: Vacant

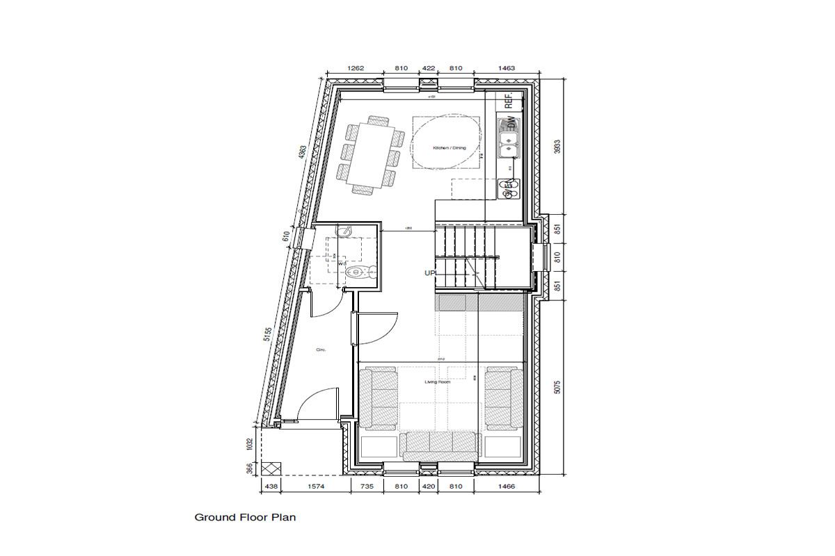
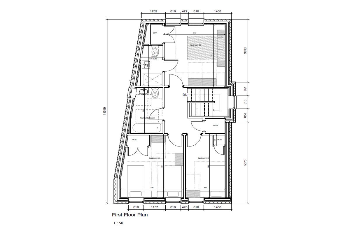
Single House Plot located in Saline, Fife with approved floor plans – circa 140 Sq.M. Attractive setting close to local amenities. Ready to go site with planning permission. Cleared Site.

Planning documentation is available on the Fife council planning portal, reference - 24/01100/FUL. Title Number - FFE26216 - West Road, Saline, Dunfermline. Historically sold for £163,000 (Nov 2020).

Would suit small builder looking for a quick start property - developer interest in land at West Road, Saline, Fife. Access off West Road - Site fronts onto West Road. Vacant Possession Sale.

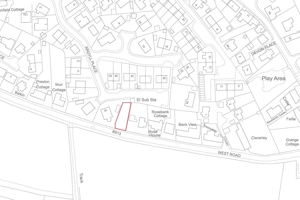
Very attractive setting adjacent to the centre of the village of Saline. The site is easily commutable by car to a variety of locations such as the town of Dollar and Dunfermline.

Single house plot with PLANNING in Saline, Fife - WEST ROAD, SALINE, FIFE, KY12 9UU - Extensive amenities can be found in nearby Dunfermline. Fife council planning portal - 24/01100/FUL.

Single House Plot located in Saline, Fife with approved floor plans – circa 140 Sq.M. Attractive setting close to local amenities. Ready to go site with planning permission. Cleared Site. Bus stops are readily accessible being adjacent to the site, linking to many areas including Dunfermline, Ferrytoll Park and Ride Inverkeithing and Falkirk. Planning documentation is available on the Fife council planning portal, reference - 24/01100/FUL. Title Number - FFE26216 - West Road, Saline, Dunfermline. Historically sold for £163,000 (Nov 2020). Would suit small builder looking for a quick start property - developer interest in land at West Road, Saline, Fife. Access off West Road - Site fronts onto West Road. Vacant Possession Sale. Very attractive setting adjacent to the centre of the village of Saline. The site is easily commutable by car to a variety of locations such as the town of Dollar and Dunfermline.

There is excellent schooling provision close to the site. Saline Primary School adjoins the site at the north eastern boundary. There is also primary schooling and secondary schooling within circa 5-7 miles. Bus services to these schools are provided from the bus stop adjacent the site. Private schooling is available at nearby Dollar Academy (approx. 6.5 miles).

Full Address:  West Road, Plot 1, Saline, Fife, KY12 9UR

Show More

Map & Location

Map   Street View   Satellite

Document Downloads

Legal Docs (Available)

* If no Special Conditions of Sale are present in the legal docs download bidders are advised to request a copy by email prior to bidding.

Pricing Information & Bidding

Opening Bid: £64,000

What is an Opening Bid? This property is entered into an online auction where the bidding will start or open at the above price. Unless specified all properties are subject to a Reserve (minimum acceptable price).

How to Bid... To take part in the online auction you must firstly create a bidding account. Once you have a bidding account you can then login and place bids during the auction. Please click on the following link to view the latest Online Auction Bidders Guide now.

View Live Online Auction

Offer Now... You may submit an offer now on this property for the owner to consider. If they are will are willing to sell you the property now then it is a matter of making the required deposit payment to secure the purchase. Complete our ONLINE OFFER FORM now to put your offer forward to the sellers.

Submit Offer Now

Terms of Sale

  • 10% Deposit (Minimum £3,000)
  • Standard Completion (Unless specified differently in any Special Conditions of Sale)
  • Buyers Fee = 3% of Sale Price (Minimum £3,250 + vat)

STANDARD TERMS OF SALE are 4 week completion with 1 week extension. Sellers can request an earlier or later completion date which will be detailed in any Special Conditions of Sale for this lot. Buyers must satisfy themselves prior to bidding as to the terms on offer.

* If no Special Conditions of Sale are present in the legal docs download bidders are advised to request a copy by email prior to bidding.

Payment Calculator

Please use our PAYMENT CALCULATOR to confirm the necessary reservation deposit for this property if you are successful with an offer now or bid at auction.

Payment Calculator

Auction Details

Date & Time: 29 January 2026, 10am-3pm
Type: Timed Online Auction

View Full Auction Catalogue