BIDDING OPENS in...

Plans

82  Canal Street  Perth, Perth and Kinross

Click to Enlarge Floorplan Image

Description

  • Status: Available
  • Type: Flat
  • Ownership: Freehold
  • Occupation: Vacant
  • Bedrooms: 2
  • Council Tax: Search

City Centre Location - Two Bedroom Traditional First Floor Flat with Private Main Door Entrance and Floored Attic Space. Features Electric Heating and Double Glazing. Home Report = £65,000.

Ideal for first-time buyers, professionals, or buy-to-let investors. The property comprises of hallway, two double sized bedrooms, kitchen, lounge and bathroom. EPC Rating - Band E.

Vacant Possession Property --- The property would be perfect for residential investment with a potential rental return of £800 per month - £9,600 per annum. Net Internal Area - 53 Sq.M.

Situated in the heart of Perth City Centre. Features Electric Heating, Double Glazing and Large Kitchen - Spacious Flat. RICS Home Report valuation £65,000 (Sixty Five Thousand Pounds Sterling).

With local shops, restaurants, cafes, and public transport links just a short walk away, this flat offers the perfect blend of central convenience and quiet residential living. Freehold Sale.

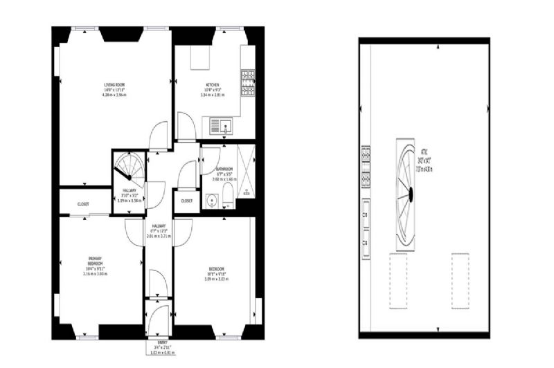
City Centre Location - Two Bedroom Traditional First Floor Flat with Private Main Door Entrance and Floored Attic Space. Features Electric Heating and Double Glazing. Freehold Residential Sale. RICS Home Report valuation £65,000 (Sixty Five Thousand Pounds Sterling). The property comprises of hallway, two double sized bedrooms, kitchen, lounge and bathroom. EPC Rating - Band E. ROOM SIZES Lounge - 2.70 x 4.30 (8'10" x 14'1") Kitchen - 3.12 x 2.41 (10'2" x 7'10") Attic Space - 4.27 x 7.29 (14'0" x 23'11") Bedroom 1 - 3.16 x 2.75 (10'4" x 9'0") Bedroom 2 - 2.99 x 3.04 (9'9" x 9'11") Shower Room - 1.66 x 2.60 (5'5" x 8'6") --- Vacant Possession --- ---Immediate Entry Available --- The property would be the perfect investment opportunity with a potential rental return of £800 PCM - £9,600 per annum. Popular Residential Address Low maintenance traditional Garden Area. On street parking. RICS Home Report valuation £65,000 (Sixty Five Thousand Pounds Sterling). Local Sales: 88 Canal Street, Perth, PH2 8HX sold for £113,250 (October 2025). 95a, Canal Street, Perth, PH2 8HX sold for £125,000 (July 2025). 95e, Canal Street, Perth, PH2 8HX sold for £110,250 (November 2024). 94, Canal Street, Perth, PH2 8HX sold for £120,000 (July 2018).

Perth, located on the banks of the river Tay, is a city in central Scotland. The city of Perth has loads to offer including St Johns shopping centre, Perth University, ASDA Superstore, just to name a few. This property benefits from its close location to the Cities fantastic transport links including frequent bus and rail services connecting you throughout the country. The bustling city of Perth enjoys a wide range of amenities including many independent shops and restaurants, theatres, cinema, swimming pool & leisure centre, ice rink, plus many social/recreational amenities.

Full Address: 82 Canal Street, Perth, Perth and Kinross, PH2 8HX

Show More

Map & Location

Map   Street View   Satellite

Document Downloads

Home Report (Available)   Legal Docs (Pending)

* If no Special Conditions of Sale are present in the legal docs download bidders are advised to request a copy by email prior to bidding.

 * Click the above 'Pending' document link to log your request and we will notify you once available.

Tours & Media

View Video Tour


Pricing Information & Bidding

Opening Bid: £50,000

What is an Opening Bid? This property is entered into an online auction where the bidding will start or open at the above price. Unless specified all properties are subject to a Reserve (minimum acceptable price).

How to Bid... To take part in the online auction you must firstly create a bidding account. Once you have a bidding account you can then login and place bids during the auction. Please click on the following link to view the latest Online Auction Bidders Guide now.

View Live Online Auction

Offer Now... You may submit an offer now on this property for the owner to consider. If they are will are willing to sell you the property now then it is a matter of making the required deposit payment to secure the purchase. Complete our ONLINE OFFER FORM now to put your offer forward to the sellers.

Submit Offer Now

Terms of Sale

  • 10% Deposit (Minimum £3,000)
  • Standard Completion (Unless specified differently in any Special Conditions of Sale)
  • Buyers Fee = 3% of Sale Price (Minimum £3,250 + vat)

STANDARD TERMS OF SALE are 4 week completion with 1 week extension. Sellers can request an earlier or later completion date which will be detailed in any Special Conditions of Sale for this lot. Buyers must satisfy themselves prior to bidding as to the terms on offer.

* If no Special Conditions of Sale are present in the legal docs download bidders are advised to request a copy by email prior to bidding.

Payment Calculator

Please use our PAYMENT CALCULATOR to confirm the necessary reservation deposit for this property if you are successful with an offer now or bid at auction.

Payment Calculator

Auction Details

Date & Time: 15 January 2026, 10am-3pm
Type: Timed Online Auction

View Full Auction Catalogue