BIDDING OPENS in...

Plans

96  Union Street, Trinity Church and Hall  Larkhall

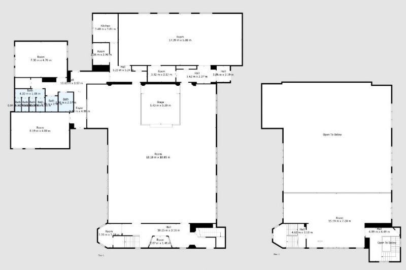
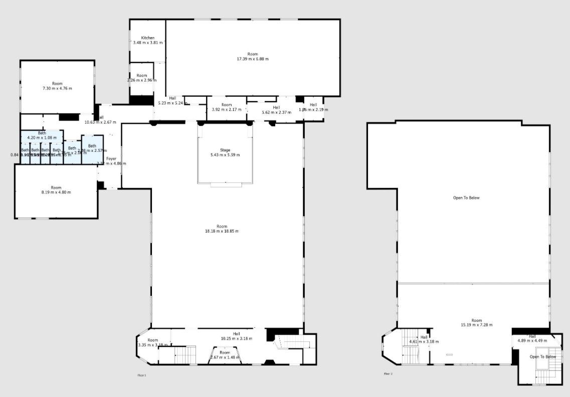
Click to Enlarge Floorplan Image

Description

  • Status: Available
  • Type: House
  • Ownership: Freehold
  • Occupation: Vacant
  • Bedrooms: 0
  • Council Tax: Search

SUBSTANTIAL sized church Building and hall located within the popular town of Larkhall, just 14 miles southeast of Glasgow.

The property comprises; Main church sanctuary with upper floor level, hall, entrance vestibule with storage, kitchen, large office and WCs.

SUBSTANTIAL SIZED PROPERTY*** approx. sizes; Ground Floor: 722.53sq m, 7,777sq ft Gallery: 51.88 sq m, 558 sq ft Total: 774.41 sq m, 8,335sq ft

Could be used as a crèche, day nursery, day centre, educational establishment, museum, art gallery or public library. Potential for a variety of other uses (subject to consents).

Larkhall is an extremely popular town within South Lanarkshire and is a commuter town for Glasgow. Local amenities include many independent shops as well as a supermarket, restaurants, cafes, pharmacy

SUBSTANTIAL sized church Building and hall located within the popular town of Larkhall, just 14 miles southeast of Glasgow. SUBSTANTIAL SIZED PROPERTY*** approx. sizes; Ground Floor: 722.53sq m, 7,777sq ft Gallery: 51.88 sq m, 558 sq ft Total: 774.41 sq m, 8,335sq ft The B listed building could be used, without the necessity of obtaining change of use consent, as a crèche, day nursery, day centre, educational establishment, museum, art gallery or public library. It also has potential for a variety of other uses, such as a theatre, cinema or entertainment venue, retail space or community resource subject to obtaining appropriate consents. The property is connected to main supplies of water, electricity and gas. Drainage is connected to the main public sewer. Larkhall is an extremely popular town within South Lanarkshire and is a commuter town for Glasgow. Local amenities include many independent shops as well as a supermarket, restaurants, cafes, pharmacy.

The town of Larkhall boasts a wide and varied range of shops, bars, restaurants, banks and building societies with further facilities available in neighbouring Hamilton and Lanark. Larkhall affords access to primary, secondary and further education facilities.

Full Address: 96 Union Street, Trinity Church and Hall, Larkhall, ML9 1EF

Show More

Map & Location

Map   Street View   Satellite

Document Downloads

  Legal Docs (Pending)

* If no Special Conditions of Sale are present in the legal docs download bidders are advised to request a copy by email prior to bidding.

 * Click the above 'Pending' document link to log your request and we will notify you once available.

Pricing Information & Bidding

Opening Bid: £136,000

What is an Opening Bid? This property is entered into an online auction where the bidding will start or open at the above price. Unless specified all properties are subject to a Reserve (minimum acceptable price).

How to Bid... To take part in the online auction you must firstly create a bidding account. Once you have a bidding account you can then login and place bids during the auction. Please click on the following link to view the latest Online Auction Bidders Guide now.

View Live Online Auction

Offer Now... You may submit an offer now on this property for the owner to consider. If they are will are willing to sell you the property now then it is a matter of making the required deposit payment to secure the purchase. Complete our ONLINE OFFER FORM now to put your offer forward to the sellers.

Submit Offer Now

Terms of Sale

  • 10% Deposit (Minimum £3,000)
  • Standard Completion (Unless specified differently in any Special Conditions of Sale)
  • Buyers Fee = 3% of Sale Price (Minimum £3,250 + vat)

STANDARD TERMS OF SALE are 4 week completion with 1 week extension. Sellers can request an earlier or later completion date which will be detailed in any Special Conditions of Sale for this lot. Buyers must satisfy themselves prior to bidding as to the terms on offer.

* If no Special Conditions of Sale are present in the legal docs download bidders are advised to request a copy by email prior to bidding.

Payment Calculator

Please use our PAYMENT CALCULATOR to confirm the necessary reservation deposit for this property if you are successful with an offer now or bid at auction.

Payment Calculator

Auction Details

Date & Time: 29 January 2026, 10am-3pm
Type: Timed Online Auction

View Full Auction Catalogue