Vacant Commercial LOT 19

11 High Street, Hawick, TD9 9BZ
DEADLINE CLOSES in...

Offer Deadline

Now Accepting Offers

Guide Price
£85,000


SUBMIT OFFERS BY

07 November 2025, 12pm

Description

  • Status: Available
  • Type: Commercial
  • Ownership: Freehold
  • Occupation: Vacant

Vacant TOWN CENTRE property over ground and basement level. Prominent frontage onto High Street. Retail / Office / Residential Potential with acheivable rent £12,000 per annum.

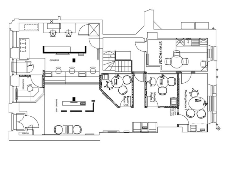
The subjects comprise a retail/office premises arranged over the ground & basement floors of a three storey and basement stone built mid terraced property.

Internally, the accommodation comprises of a reception area, office space & two meeting rooms on the ground floor with storage space & male and female WC facilities at basement level.

The property has been calculated to extend to the following internal area; Ground: 102.94sqm (1,108sq ft) Basement: 24.7sqm (266sq ft) Total: 127.64sqm (1,374sq ft)

Hawick is a town in the Scottish Borders region, historic county of Roxburghshire. The High Street is the main retail/ town-centre street in Hawick, hosting a number of shopsand services.

Vacant TOWN CENTRE property over ground and basement level. Prominent frontage onto High Street. Retail / Office / Residential Potential with acheivable rent £12,000 per annum. The subjects comprise a retail/office premises arranged over the ground & basement floors of a three storey and basement stone built mid terraced property. Internally, the accommodation comprises of a reception area, office space & two meeting rooms on the ground floor with storage space & male and female WC facilities at basement level. The property has been calculated to extend to the following internal area; Ground: 102.94sqm (1,108sq ft) Basement: 24.7sqm (266sq ft) Total: 127.64sqm (1,374sq ft) Hawick is a town in the Scottish Borders region, historic county of Roxburghshire. The High Street is the main retail/ town-centre street in Hawick, hosting a number of shopsand services.

The property is situated on the east side of High Street within the town of Hawick. Hawick boasts a variety of shops and recreational pursuits such as golf, tennis, countryside walks and fishing. Wilton Primary and Trinity Primary School are close by as well as Hawick High School, offering a high degree of primary and secondary education. Hawick is a wonderful town steeped in a sense of history and tradition. Known as the Home of Cashmere, Hawick offers a multitude of varied attractions, including the Borders Textile Towerhouse, Borders Distillery, cinema, Vertish Hill Golf Course and the award-winning Wilton Lodge Park and is famous for its proud rugby tradition. The town is also the venue for the famous annual Common Riding and popular Summer Festival. The surrounding Border towns are easily accessible as are Edinburgh, Newcastle and Carlisle with the Mart Street bus depot on your doorstep. Tweedbank is only 17 miles and offers a rail link to Edinburgh, ideal for city commuters.

Full Address: 11 High Street, Hawick, TD9 9BZ

Show More

Map & Location

Map   Street View   Satellite

Document Downloads

  Legal Docs (Pending)

* If no Special Conditions of Sale are present in the legal docs download bidders are advised to request a copy by email prior to bidding.

 * Click the above 'Pending' document link to log your request and we will notify you once available.

Pricing Information & Bidding

Guide Price: £85,000


What is a Guide Price... Auction Guide Prices are displayed as an indication of each seller's approximate sale expectation. They are not necessarily figures which a property will sell for and may change prior to the auction.

Offer Now... You may submit an offer now on this property for the owner to consider ahead of the set auction. If they are will are willing to sell you the property now then it is a matter of making the required deposit payment to secure the purchase. Complete our ONLINE OFFER FORM now to put your offer forward to the sellers.

Submit Offer Now

SPECIAL Terms of Sale

  • 10% Deposit (Minimum £3,000)
  • Buyers Fee = 3% of Sale Price (Minimum £3,250 + vat)
  • 4 Weeks Completion or Longer By Agreement
  • Contribution to Sellers Costs £2,750 for on time settlement

VIEW THE GENERAL TERMS OF SALE which are superseded by any special conditions detailed above.

* If no Special Conditions of Sale are present in the legal docs download bidders are advised to request a copy by email prior to bidding.

Payment Calculator

Please use our PAYMENT CALCULATOR to confirm the necessary reservation deposit for this property if you are successful with an offer now or bid at auction.

Payment Calculator

Auction Details

Date & Time: 07 November 2025, 12pm
Type: Deadline for Offers

View Full Auction Catalogue