BIDDING OPENS in...

Plans

Cornbank House  59 Carlops Road  Penicuik

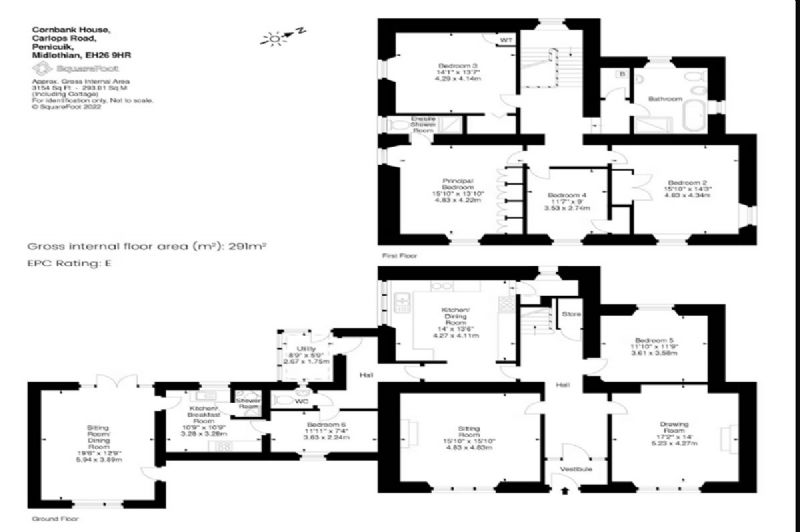
Click to Enlarge Floorplan Image

Description

  • Status: Available
  • Type: House
  • Ownership: Freehold
  • Occupation: Vacant
  • Bedrooms: 5
  • Council Tax: Search

***Stunning detached villa with annexe , presented in walk in condition*** Massive discount on home report value of £835,000*** Fantastic opportunity for stunning family home or bespoke rental***

*** Large Georgian villa comprising 5 bedrooms, 2 public rooms and large kitchen. There is an additional annexe building which contains a further bedroom with lounge, kitchen and utility room***

***The property has been modernised to a high standard and is presented in walk in condition. Many original features have been retained or replicated to retain that Georgian feel***

***Cornbank House dates from the 18th Century, originally being the farmhouse to the Penicuik Estate. A substantial detached villa with surrounding grounds and ample parking***

***The attached annexe area of the property offers a range of options from granny flat to premium serviced accommodation which has proven to be extremely lucrative for the current owners***

***Stunning detached villa with annexe , presented in walk in condition*** Massive discount on home report value of £835,000*** Fantastic opportunity for stunning family home or bespoke rental*** *** Large Georgian villa comprising 5 bedrooms, 2 public rooms and large kitchen. There is an additional annexe building which contains a further bedroom with lounge, kitchen and utility room*** ***The property has been modernised to a high standard and is presented in walk in condition. Many original features have been retained or replicated to retain that Georgian feel*** ***Cornbank House dates from the 18th Century, originally being the farmhouse to the Penicuik Estate. A substantial detached villa with surrounding grounds and ample parking*** ***The attached annexe area of the property offers a range of options from granny flat to premium serviced accommodation which has proven to be extremely lucrative for the current owners*** ***Stunning detached home*** Cornbank House dates from the 18th century and was originally the farmhouse for the historically significant Penicuik Estate. The property has been modernised to a high standard by the current owners who have created a wonderful contemporary interpretation of the character that Georgian buildings are renowned for. The main property comprises, 5 bedrooms, 2 public rooms, kitchen and bathroom. The self-contained annexe comprises, lounge, 1 bedroom, kitchen and WC. The property sits with approximately 3/4 of an acre and has a secluded feel behind mature hedges and electric gates.

Prenicuik is located around 9 miles outside Edinburgh city centre, at the foot of the picturesque Pentland Hills, Penicuik offers a rural lifestyle with all the advantages of city living. The town centre is home to a selection of stores and independent retailers. The town also offers traditional pubs, cafes and hotel restaurants. Supermarkets include Tesco and Lidl, and Straiton retail park is just a short drive or bus trip away. Ideal for families, the town offers a number of play parks, parent and child groups and is served by several primary schools and two high schools. Penicuik is also well placed for excellent independent schools and private childcare options. Residents of Penicuik are spoilt for choice when it comes to sport and fitness facilities, including Ladywood and Penicuik leisure centres, sports clubs and golf courses, as well as a wealth of outdoor activities in the surrounding countryside - from invigorating hiking, mountain biking and snow sports in the Pentland Hills, to relaxed strolls or cycles along the River North Esk. Thanks to its southerly location Penicuik allows swift and easy access to Edinburgh City Bypass, Edinburgh Airport and the M8/M9 networks. Buses run to and from Edinburgh city centre, including express and night services, as well as to the Borders and Musselburgh.

Full Address: Cornbank House 59 Carlops Road, Penicuik , EH26 9HR

Show More

Map & Location

Map   Street View   Satellite

Document Downloads

Home Report (Available) Legal Docs (Available)

* If no Special Conditions of Sale are present in the legal docs download bidders are advised to request a copy by email prior to bidding.

Pricing Information & Bidding

Opening Bid: £608,000

What is an Opening Bid? This property is entered into an online auction where the bidding will start or open at the above price. Unless specified all properties are subject to a Reserve (minimum acceptable price).

How to Bid... To take part in the online auction you must firstly create a bidding account. Once you have a bidding account you can then login and place bids during the auction. Please click on the following link to view the latest Online Auction Bidders Guide now.

View Live Online Auction

Offer Now... You may submit an offer now on this property for the owner to consider. If they are will are willing to sell you the property now then it is a matter of making the required deposit payment to secure the purchase. Complete our ONLINE OFFER FORM now to put your offer forward to the sellers.

Submit Offer Now

Terms of Sale

  • 10% Deposit (Minimum £3,000)
  • Standard Completion (Unless specified differently in any Special Conditions of Sale)
  • Buyers Fee = 3% of Sale Price (Minimum £3,250 + vat)

STANDARD TERMS OF SALE are 4 week completion with 1 week extension. Sellers can request an earlier or later completion date which will be detailed in any Special Conditions of Sale for this lot. Buyers must satisfy themselves prior to bidding as to the terms on offer.

* If no Special Conditions of Sale are present in the legal docs download bidders are advised to request a copy by email prior to bidding.

Payment Calculator

Please use our PAYMENT CALCULATOR to confirm the necessary reservation deposit for this property if you are successful with an offer now or bid at auction.

Payment Calculator

Auction Details

Date & Time: 29 January 2026, 10am-3pm
Type: Timed Online Auction

View Full Auction Catalogue